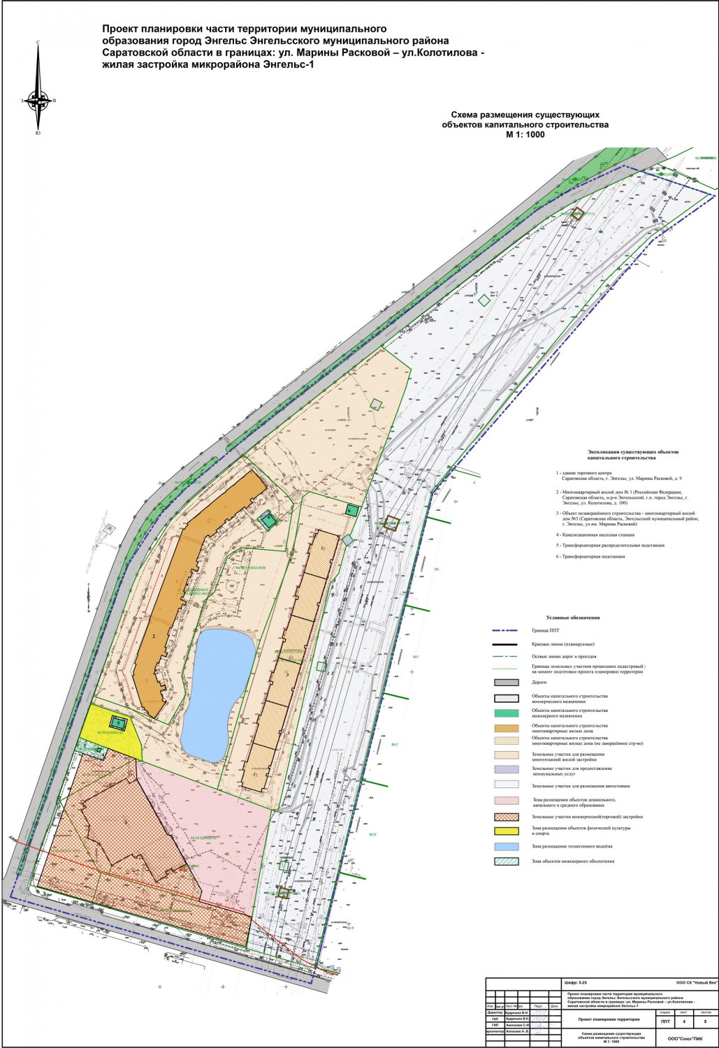
На улице Колотилова в Энгельсе планируется строительство еще одного многоквартирного дома. Проект планировки территории в границах улиц Марины Расковой, Колотилова и микрорайона Энгельс-1 утвердил вчера в подписанном приказе министр строительства и ЖКХ Михаил Бутылкин.
В приложенном проекте планировки уточняется, что речь идет о микрорайоне, который строило ООО СК «Новый век» — так называемый «Дом у озера». Там рядом с водоемом за пределами Летного городка был построен один дом и сейчас, согласно документам, возводится второй. Проект планировки предполагает строительства третьего двухсекционного, десятиэтажного многоквартирного жилого дома, детского сада на 100 мест, а также парковок, детских и спортивных площадок и т. д.
В двух десятиэтажках (построенной и достраиваемой) уже есть 940 квартир. В двухсекционном доме, который собираются построить на пустыре дальше по улице Колотилова в сторону кольцевой развязки, предполагается 126 квартир. Здание детсада на 100 мест уже строится, он будет рядом с водоемом. Подробно с документом и приложенными проектами можно ознакомиться по ссылке.
Напомним, ранее из-за застройки этого микрорайона между администрацией Энгельсского района и «Новым веком» шли судебные разбирательства. Однако застройщик выиграл суды и доказал незаконность решений о приостановке строительства домов.
- Учреждению мэрии разрешили повысить этажность строительства на участках в Заводском районе
- Саратовская область заняла 10-е место в ПФО по объемам построенного жилья
- Объемы строительства жилья в Саратовской области упали на 15 процентов по итогам девяти месяцев
- В Саратове ввели новостройку в «Городских просторах», в Балаково выдали разрешение на строительство дома для врачей
- Мэрия готовит участки в Заводском районе под высотную застройку
- На фоне обещаний президенту подтянуть показатели, строительная отрасль Саратовской области в августе показала существенное падение